Обяви За нас Контакти
Продава 2-СТАЕН
град Пловдив, Остромила
При запитване
История на цената
Коригирана в 13:44 на 12 август, 2025 год.
Обявата е посетена 186 пъти.
Площ:
112 m2
Строителство:
Тухла, Не е въведен в експлоатация

Описание на имота:


Компания Х представя на Вашето внимание тристаен апартамент в кв.Остромила.

МЕСТОПОЛОЖЕНИЕ:Кварталът разполага с добре развита инфраструктура,обществен транспорт, магазини, училища, детски градини и други удобства.В околността на квартала се намират няколко парка и зелени площи, които предлагат възможности за отдих и разходки на открито.Кварталът е подходящ за семейства с деца, като предлага спокойна и сигурна обстановка за живеене.

СТРОИТЕЛСТВО: Рзположен на 1-ви етаж в сграда с модерен дизайн, построена през 2023 година. Апартаментът впечатлява със светлина и пространство с панорамни гледки.

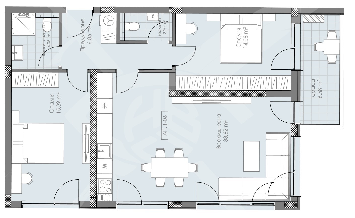
РАЗПРЕДЕЛЕНИЕ: Жилището разполага с площ от 112кв.м.,състои се от всекидневна, две спални, баня и тоалетна,тоалетна, тераса.

СЪСТОЯНИЕ: Жилището се предлага на шпакловка и замазка, което дава възможност на новите собственици да създадат своя нов ДОМ, придавайки му индивидуалност и стил.

Заповядайте да Ви го покажем. Използвайки нашите услуги Вие ще превърнете закупуването на новия си дом в едно приятно изживяване, ще получите персонален консултант, съдействие при кандидатстване за кредит от всички банки в България, интериорни дизайнери и екип, който да се погрижи за нужните документи по Вашата сделка. На Ваше разположение сме всеки ден, от понеделник до неделя от 09:00 до 20:00ч. Възползвайте се от безплатна консултация в наш офис, където ще ви спестим време и ще ви запознаем с всички актуални имоти в България, отговарящи на Вашето търсене. Свържете се с нас на 088777990 или на 0884060990 и цитирайте кода към имота: 592-22196
Особености
Тухла
За контакт:
0887779990
Агенция:
ЕКС НВД ООД
088777990
ЕКС НВД ООД logo
В imot.bg от 2023 г.
xnvd_plovdiv.imot.bg
Адрес:
област Пловдив, гр. Пловдив, бул. Мария Луиза 43 А
ИЗПРАТИ ЗАПИТВАНЕ
ИЗПРАТИ ЗАПИТВАНЕТО

Продава 2-СТАЕН
град Пловдив, Остромила
Обява: 1b171748952754910

При запитване
История на цената

ЗАПАЗИ ОБЯВАТА

Местоположение: град Пловдив, Остромила

Допълнителни данни за имотите в района и сравнение с други райони

Покажи

Период

* Средните цени са определени чрез медианна стойност